Naďa Čunderlová
realitní specialista
Naďa Čunderlová
Mám zájem o prohlídku
Přehled
  • Cena za nemovitost
    13 400 000
  • Měna
  • Provize
    včetně provize
  • DPH
    včetně DPH
  • Poplatky
    včetně poplatků
  • Právní servis
    včetně právního servisu
  • energetická náročnost
    B - Velmi úsporná
  • certifikát energetické náročnosti
    vyhláška 264/2020 Sb
  • souhrn energetické náročnosti
    75 kWh/m2 za rok
  • vybavení
    Ne
  • typ budovy
    Cihlová
  • stav budovy
    Ve výstavbě
  • plocha pozemku
    242 m²
  • užitná plocha
    130 m²
  • druh objektu
    Rohový
  • lokalita
    Klidná část obce
  • okolní zástavba
    Obytná
  • typ objektu
    Patrový
  • počet pokojů
    4 pokoje
Řešení
  • garáž
    Ano

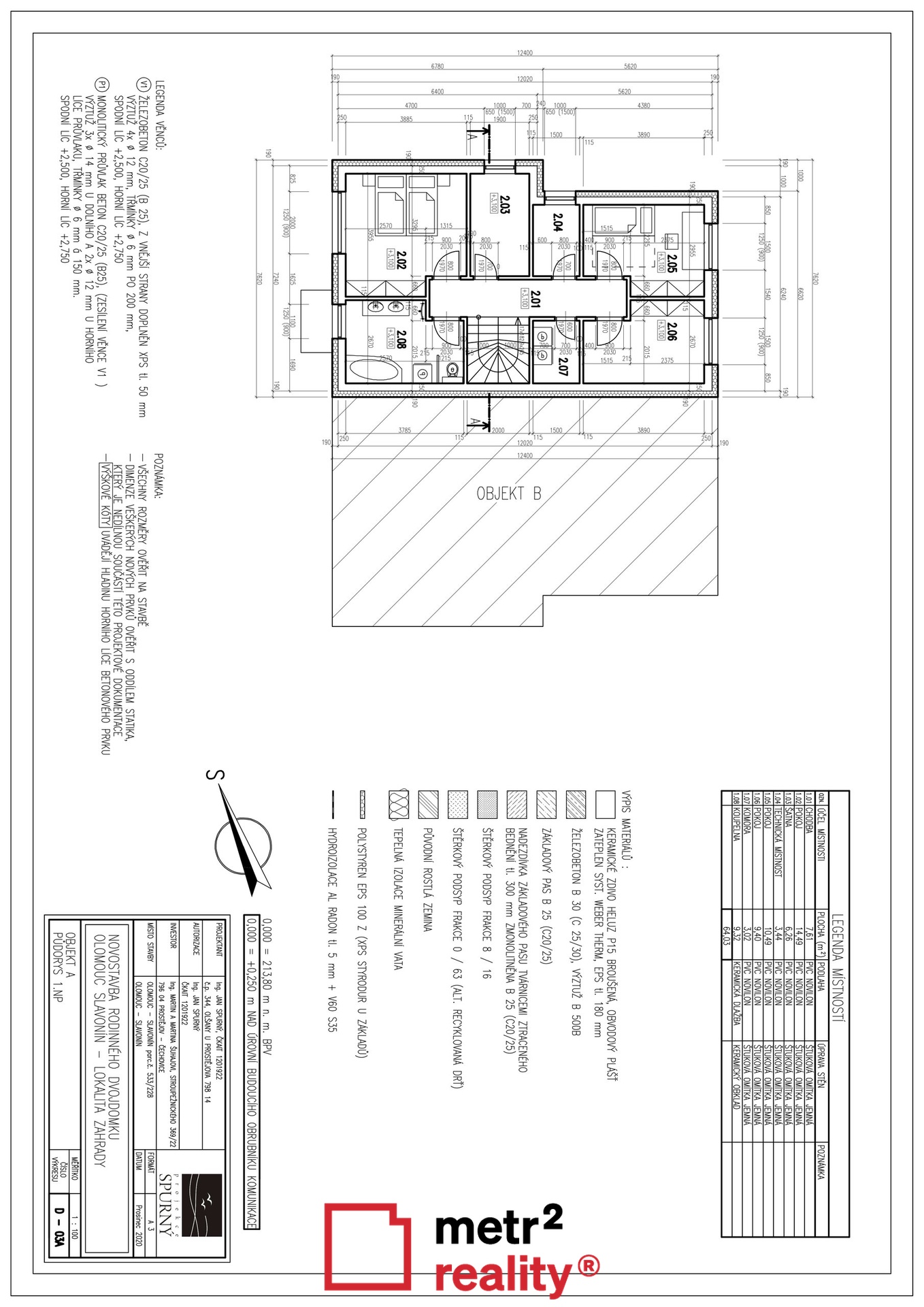
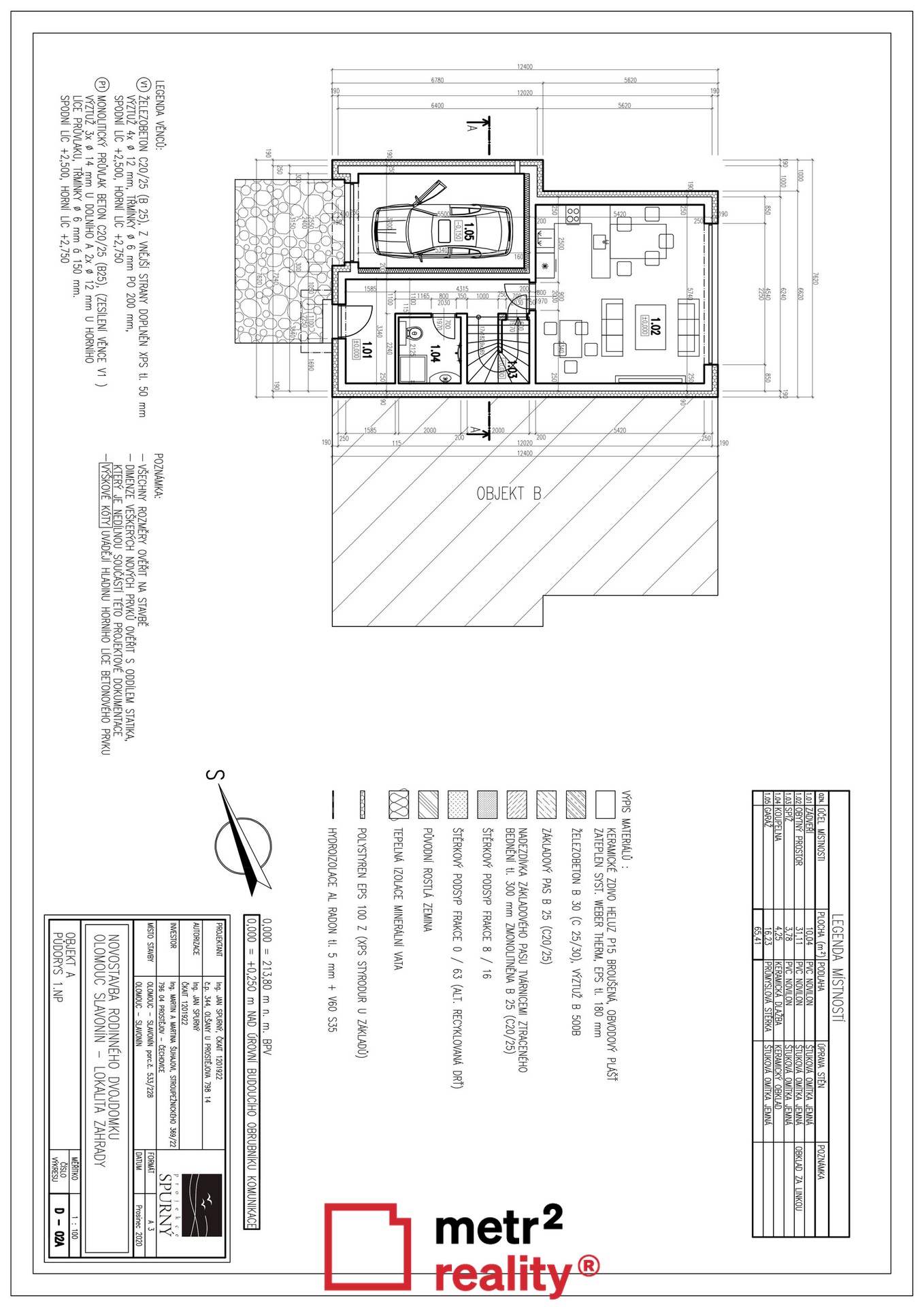
Rodinný dům na prodej, Olomouc Slavoje Kovaříka, 130 m²

Slavoje Kovaříka, Olomouc
13 400 000 Kč
Dům
Ve výhradním zastoupení majitele nabízíme k prodeji moderní patrový rodinný dům o dispozici 4+kk, situovaný v atraktivní a klidné lokalitě v Olomouci Slavoníně, která patří mezi nejvyhledávanější části města Olomouc. Dům je ideální pro rodinné bydlení a nabízí nadstandardní užitnou plochu, vlastní zahradu a garáž. Celková plocha pozemku činí 242 m², užitná plocha domu je 130 m². V přízemí se nachází prostorný obývací pokoj s přípravou na kuchyňský kout a přímým vstupem na zahradu francouzským oknem, koupelna s WC a spižírnou pod schodištěm. V přízemí je dále prostorné zádveří a garáž. V patře jsou situovány tři ložnice, koupelna s vanou a sprchovým koutem a druhé WC, technická místnost a dvě šatny. Podlahové vytápění a ohřev vody je zajištěno tepelným čerpadlem. Všechna okna jsou plastová v barvě antracit s izolačním trojsklem a přípravou na venkovní žaluzie. Součástí domu je integrovaná garáž a další venkovní parkovací stání před domem, což poskytuje pohodlné parkování pro dvě vozidla. Slavonín je klidná městská část Olomouce s výbornou občanskou vybaveností – v docházkové vzdálenosti se nachází školy, školky, MHD, obchody, zdravotnická zařízení, cyklostezky i přírodní parky. Centrum Olomouce je dostupné během několika minut autem nebo MHD. Vynikající je i napojení na dálnici D35. Cena uvedená v inzerci je za dům ve stavu uzavřené hrubé stavby včetně rozvodů a omítek, na klientovi bude, aby si dokončil koupelny, podlahové krytiny a interiérové dveře. Je možná i dohoda dokončit dům na klíč na přání klienta. Dům je nyní ve výstavbě a je ve fázi hrubé stavby. V případě zájmu o prohlídku nás neváhejte kontaktovat, rádi Vás domem provedeme.