Naďa Čunderlová
realitní specialista
Naďa Čunderlová
Mám zájem o prohlídku
Přehled
  • Cena za nemovitost
    8 500 000
  • Měna
  • energetická náročnost
    B - Velmi úsporná
  • certifikát energetické náročnosti
    vyhláška 264/2020 Sb
  • souhrn energetické náročnosti
    65.8 kWh/m2 za rok
  • typ budovy
    Cihlová
  • stav budovy
    Ve výstavbě
  • plocha pozemku
    214 m²
  • užitná plocha
    173 m²
  • celková plocha
    201 m²
  • druh objektu
    Rohový
  • typ objektu
    Patrový
  • počet pokojů
    5 a více pokojů
Řešení
  • garáž
    Ano
  • počet garáží
    1

Rodinný dům na prodej, Tršice, 173 m²

Tršice
8 500 000 Kč
201 m²
Dům
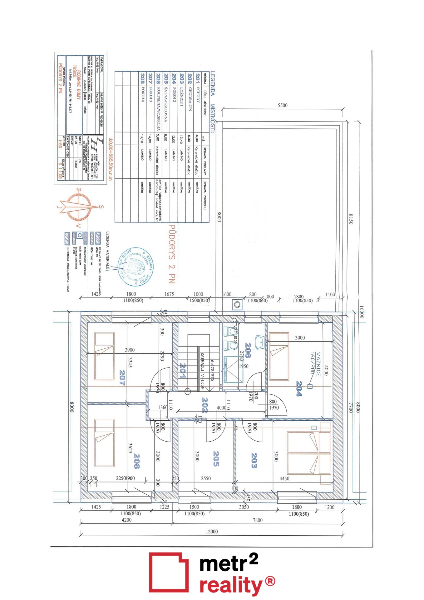
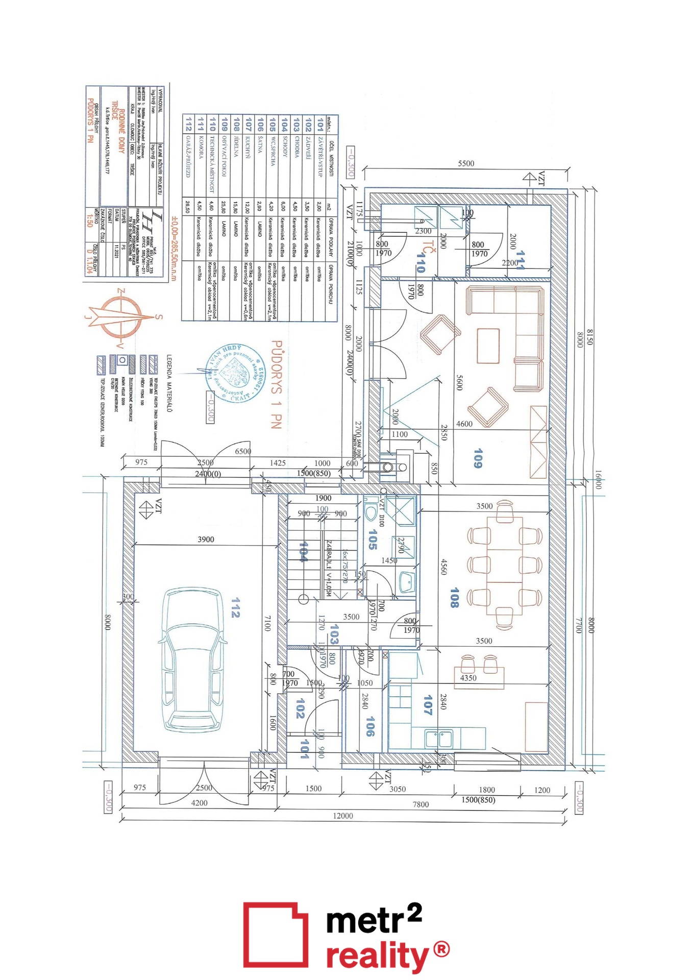
Ve výhradním zastoupení majitele si Vám dovolujeme nabídnout k prodeji novostavbu krajního řadového domu v obci Tršice, která je vzdálená 16 km od Olomouce. Dům je nyní ve výstavbě a termín dokončení je naplánovaný do konce roku 2025. Jedná se o dvoupodlažní zděný dům o dispozici 5+kk s garáží, užitná plocha domu činí krásných 173 m2 + garáž 28 m2. K domu náleží pozemek o výměře 214 m2. V přízemí se nachází vstupní chodba, ze které se vchází do koupelny s WC, kuchyně s jídelnou, obývacího pokoje, komory a garáže, v patře jsou pak čtyři samostatné ložnice, velká šatna a druhá koupelna s WC. Z obývacího pokoje se francouzským oknem dostanete na oplocený dvůr, který nabízí maximální soukromí na odpočinek. Dům bude napojen na veškeré inženýrské sítě – vodovod, kanalizace, elektřina. Vytápění bude zajišťovat tepelné čerpadlo voda – vzduch, v přízemí bude podlahové vytápění, v patře pak radiátory. Dům bude dokončen ve vysokém standardu, vyjma kuchyňské linky. Dům má sedlovou střechu, krytina poplastovaný plech, okna jsou plastová s trojskly. V interiéru budou laminátové podlahy v kombinaci s dlažbou, obložkové dýhované dveře, schodiště do patra bude monolitické s dřevěným obložením z dubového masivu. Obec Tršice nabízí svým obyvatelům veškerou občanskou vybavenost, nachází se zde mateřská i základní škola, zdravotní středisko, sportovní zařízení s tenisovými kurty, obchod aj. Velkou výhodou je velmi dobrá dopravní dostupnost do Olomouce i Přerova. V případě zájmu o bližší informace či prohlídku nás neváhejte kontaktovat.